Edificio en centro ciudad de 496m2 en 3 plantas c/. Nou de Figueres

Figueres
8 Hab.
2 Aseos
425
496
494

Edificio neoclásico situado en el centro de Figueres, rehabilitado desde 2009, dispone de planta baja y dos plantas superiores.
• Superficie total construida de 496m2
• 3 plantas
• Parcela de 494m2
• Fachada: 8 mts.
• Profundidad construcción: 20 mts.
• Profundidad total parcela: 56 mts
• Planta baja destinada a local, vivienda o garaje de 180m2
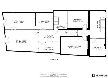
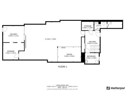
• Planta primera: vivienda de 172m2
• Planta segunda: vivienda de 144m2 más una terraza de 28m2.
• El edificio dispone de instalaciones eléctricas, de agua, telefonía, fibra óptica, climatización y posibilidad de conectar a la red de gas ciudad.
La planta baja dispone de aseos (uno adaptado para minusválidos), las viviendas de las plantas superiores actualmente no disponen de cocina ni aseos.
Las tres plantas del edificio podrían redistribuirse y convertirlas en viviendas más pequeñas (por ejemplo, dos por planta), dado que la planta baja dispone de un jardín de unos 314m2 aproximadamente.


Detalles

  • Tipo de Inmueble Edificio
  • Estado Bién
  • Año construcción 2009
  • Orientación east
  • Vistas Cidad

Distribución

  • Sup. Inmueble 425
  • Sup. Construida 496
  • Sup. Parcela 494
  • Habitaciones 8
  • Aseos 2

Características

  • Terraza
  • Office
  • Jardín

Certificado energético

  • Consumo energético D 217 kW h m² /año
  • Emisiones D 36 kg CO₂ m² /año

Ubicación


Tour Virtual


Galería de fotos

Edificio en centro ciudad de 496m2 en 3 plantas c/. Nou de Figueres0 Edificio en centro ciudad de 496m2 en 3 plantas c/. Nou de Figueres1 Edificio en centro ciudad de 496m2 en 3 plantas c/. Nou de Figueres2 Edificio en centro ciudad de 496m2 en 3 plantas c/. Nou de Figueres3 Edificio en centro ciudad de 496m2 en 3 plantas c/. Nou de Figueres4 Edificio en centro ciudad de 496m2 en 3 plantas c/. Nou de Figueres5 Edificio en centro ciudad de 496m2 en 3 plantas c/. Nou de Figueres6 Edificio en centro ciudad de 496m2 en 3 plantas c/. Nou de Figueres7 Edificio en centro ciudad de 496m2 en 3 plantas c/. Nou de Figueres8 Edificio en centro ciudad de 496m2 en 3 plantas c/. Nou de Figueres9 Edificio en centro ciudad de 496m2 en 3 plantas c/. Nou de Figueres10 Edificio en centro ciudad de 496m2 en 3 plantas c/. Nou de Figueres11 Edificio en centro ciudad de 496m2 en 3 plantas c/. Nou de Figueres12 Edificio en centro ciudad de 496m2 en 3 plantas c/. Nou de Figueres13 Edificio en centro ciudad de 496m2 en 3 plantas c/. Nou de Figueres14 Edificio en centro ciudad de 496m2 en 3 plantas c/. Nou de Figueres15 Edificio en centro ciudad de 496m2 en 3 plantas c/. Nou de Figueres16 Edificio en centro ciudad de 496m2 en 3 plantas c/. Nou de Figueres17 Edificio en centro ciudad de 496m2 en 3 plantas c/. Nou de Figueres18 Edificio en centro ciudad de 496m2 en 3 plantas c/. Nou de Figueres19 Edificio en centro ciudad de 496m2 en 3 plantas c/. Nou de Figueres20 Edificio en centro ciudad de 496m2 en 3 plantas c/. Nou de Figueres21 Edificio en centro ciudad de 496m2 en 3 plantas c/. Nou de Figueres22 Edificio en centro ciudad de 496m2 en 3 plantas c/. Nou de Figueres23 Edificio en centro ciudad de 496m2 en 3 plantas c/. Nou de Figueres24 Edificio en centro ciudad de 496m2 en 3 plantas c/. Nou de Figueres25 Edificio en centro ciudad de 496m2 en 3 plantas c/. Nou de Figueres26 Edificio en centro ciudad de 496m2 en 3 plantas c/. Nou de Figueres27 Edificio en centro ciudad de 496m2 en 3 plantas c/. Nou de Figueres28 Edificio en centro ciudad de 496m2 en 3 plantas c/. Nou de Figueres29 Edificio en centro ciudad de 496m2 en 3 plantas c/. Nou de Figueres30 Edificio en centro ciudad de 496m2 en 3 plantas c/. Nou de Figueres31 Edificio en centro ciudad de 496m2 en 3 plantas c/. Nou de Figueres32 Edificio en centro ciudad de 496m2 en 3 plantas c/. Nou de Figueres33 Edificio en centro ciudad de 496m2 en 3 plantas c/. Nou de Figueres34 Edificio en centro ciudad de 496m2 en 3 plantas c/. Nou de Figueres35 Edificio en centro ciudad de 496m2 en 3 plantas c/. Nou de Figueres36 Edificio en centro ciudad de 496m2 en 3 plantas c/. Nou de Figueres37 Edificio en centro ciudad de 496m2 en 3 plantas c/. Nou de Figueres38 Edificio en centro ciudad de 496m2 en 3 plantas c/. Nou de Figueres39 Edificio en centro ciudad de 496m2 en 3 plantas c/. Nou de Figueres40 Edificio en centro ciudad de 496m2 en 3 plantas c/. Nou de Figueres41 Edificio en centro ciudad de 496m2 en 3 plantas c/. Nou de Figueres42 Edificio en centro ciudad de 496m2 en 3 plantas c/. Nou de Figueres43 Edificio en centro ciudad de 496m2 en 3 plantas c/. Nou de Figueres44 Edificio en centro ciudad de 496m2 en 3 plantas c/. Nou de Figueres45 Edificio en centro ciudad de 496m2 en 3 plantas c/. Nou de Figueres46 Edificio en centro ciudad de 496m2 en 3 plantas c/. Nou de Figueres47
Ref. 00/1229
470.000 €
470.000 €
Contactar

Solicitar más información