En la Plaza Creu de la Mà. Alquilado hasta Febrero de 2028. .

Figueres
4 Hab.
2 Baños
110
129
463
Reservado

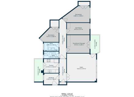
Descubre esta amplia y luminosa propiedad ubicada en la codiciada zona de Creu de la mà, en Figueres. Este piso, con un precio competitivo de 160,000 euros, ofrece una generosa superficie construida de 129 m² y útil de 110 m². La vivienda cuenta con tres habitaciones dobles más una sencilla que brindan suficiente espacio para toda tu familia o visitantes. Además dispone dos baños completos ideales para el confort diario. Aunque se necesita reforma parcial, su potencial es innegable; los espacios son completamente exteriores lo cual asegura abundante luz natural durante todo el día gracias a su orientación noreste. También disfrutarás del aire libre desde su terraza privada adicionalmente equipada con seis metros cuadrados donde podrás relajarte al sol o compartir momentos agradables al aire fresco.


Detalles

  • Tipo de Inmueble Piso
  • Estado Bién
  • Año construcción 1975
  • Orientación east
  • Vistas Cidad

Distribución

  • Sup. Inmueble 110
  • Sup. Construida 129
  • Sup. Parcela 463
  • Sup. Terraza 6
  • Habitaciones 4
  • Baños 2

Características

  • Cocina
  • Comedor
  • Lavadero
  • Terraza
  • Armarios Empotrados
  • Trastero
  • Gas Ciudad
  • Ascensor
  • Exterior
  • Soleado
  • Portero automático

Certificado energético

  • Consumo energético E 210 kW h m² /año
  • Emisiones E 42 kg CO₂ m² /año

Ubicación


Galería de fotos

En la Plaza Creu de la Mà. Alquilado hasta Febrero de 2028. .0 En la Plaza Creu de la Mà. Alquilado hasta Febrero de 2028. .1 En la Plaza Creu de la Mà. Alquilado hasta Febrero de 2028. .2 En la Plaza Creu de la Mà. Alquilado hasta Febrero de 2028. .3 En la Plaza Creu de la Mà. Alquilado hasta Febrero de 2028. .4 En la Plaza Creu de la Mà. Alquilado hasta Febrero de 2028. .5 En la Plaza Creu de la Mà. Alquilado hasta Febrero de 2028. .6 En la Plaza Creu de la Mà. Alquilado hasta Febrero de 2028. .7 En la Plaza Creu de la Mà. Alquilado hasta Febrero de 2028. .8 En la Plaza Creu de la Mà. Alquilado hasta Febrero de 2028. .9 En la Plaza Creu de la Mà. Alquilado hasta Febrero de 2028. .10 En la Plaza Creu de la Mà. Alquilado hasta Febrero de 2028. .11 En la Plaza Creu de la Mà. Alquilado hasta Febrero de 2028. .12 En la Plaza Creu de la Mà. Alquilado hasta Febrero de 2028. .13 En la Plaza Creu de la Mà. Alquilado hasta Febrero de 2028. .14 En la Plaza Creu de la Mà. Alquilado hasta Febrero de 2028. .15 En la Plaza Creu de la Mà. Alquilado hasta Febrero de 2028. .16 En la Plaza Creu de la Mà. Alquilado hasta Febrero de 2028. .17 En la Plaza Creu de la Mà. Alquilado hasta Febrero de 2028. .18 En la Plaza Creu de la Mà. Alquilado hasta Febrero de 2028. .19 En la Plaza Creu de la Mà. Alquilado hasta Febrero de 2028. .20 En la Plaza Creu de la Mà. Alquilado hasta Febrero de 2028. .21 En la Plaza Creu de la Mà. Alquilado hasta Febrero de 2028. .22 En la Plaza Creu de la Mà. Alquilado hasta Febrero de 2028. .23
Ref. 1026
160.000 €
160.000 €
Contactar

Solicitar más información